Резервуары и металлоконструкции
от завода-производителя

Доставка по всей России!

slide-s02

Резервуар вертикальный РВС 75 м3

Резервуар вертикальный РВС 75 м3

 

Резервуар вертикальный РВС 75 м3 – хранилище, используемое для хранения таких рабочих сред, как нефть, нефтепродукты, смеси технологического назначения и прочие жидкие вещества, плотность которых составляет до 1 т/м3. Оборудование при сравнительно приемлемой цене и быстром сооружении надежные, и способны прослужить длительное время, что позволяет эксплуатировать их на объектах, где повышенная опасность. Завод Резервуаров и Негабаритных Металлоконструкций изготавливает емкости согласно ТУ 3615-001- 24009276-2015. Вся продукция сертифицирована.

Способы изготовления, применяемые нашим заводом-изготовителем

Хранилища указанной кубатуры изготавливаются на нашем заводе двумя способами:

 

  • Рулонирование. Плюс такого способа заключается в сведении к минимуму сварки на монтажной площадке на 80%, так как работы по стыкованию и стенок, днищ, понтонных днищ и днищ плавсредства осуществляются в цеху завода полуавтоматической сваркой. Листовой металлопрофиль размером 1500х6000 мм сваривают в полотна необходимых размеров. Затем полотнища сворачивают на приспособления, обеспечивающие перевозку на объект заказчика.
  • Технология полистовой сборки. Такой способ в основном актуален для хранилищ, в которых будет храниться нефть и продукты нефтепереработки. Его применяют, если отсутствует место на стройплощадке. Для стенок используется листовой прокат из стали шириной от 1,8 м до 3,0 м.

Характеристики

Производитель Собственное производство
Кубатура 75 м3
Материал изготовления Сталь
Минимальная плотность хранимой рабочей среды 1015 кг/м3
Максимальная плотность среды До 1 т/м3
Предельная температура эксалуатации 260 ºС
Стандартный диаметр 3400 мм
Внутреннее максимальное давление До 5 кПа
Технические условия ТУ 3615-001- 24009276-2015
Днище Конической формы
Срок эксплуатации 10 лет и более
Состояние Новое, под индивидуальный заказ
Срок изготовления резервуара До 15 дней

 

Возможно изготовление аппарата другого объема необходимых размеров.

Антикоррозийное покрытие и утепление

На территории нашего завода работает собственный производственный цех, на котором выполняется горячее оцинкование для защиты внутренней и наружной стороны резервуара от коррозии. Такое покрытие важно, поскольку стенки емкости постоянно контактируют с жидкими рабочими средами, из-за которых изделие изнутри и снаружи может ржаветь. Оцинкование проводится согласно ГОСТ 9.307-89, возможно покрытие от старения в соответствии с нормативами ГОСТ 9.302-88, ГОСТ 9.308-85, ГОСТ 9.301-86, 9.306-85, СП 28.13330.2012. Также утепление ППУ и дополнительным оборудованием для обогрева хранилища (необходимо для исключения загустевания рабочей среды, например, бензина или дизтоплива). Если в резервуаре планируется хранить опасные воспламеняющиеся жидкости, можно произвести огнезащиту.

Как сделать заказ с быстрой доставкой по России?

 

Клиентам доступна информация по телефону. Свяжитесь со специалистами по указанным на сайте данным. Можно написать на электронный адрес. После подтверждения заказа наш менеджер рассчитает стоимость и доставку до назначенного объекта. Транспортируем металлоконструкции любой город России. Для оптовиков и постоянных клиентов действуют скидки и специальные предложения, узнать о которых можно у наших менеджеров, позвонив, или написав на электронный адрес.

 

Рассчитать стоимость или купить "Резервуар вертикальный РВС 75 м3" от Завода Резервуаров и Негабаритных Металлоконструкций вы сможете всегда в короткие сроки.

Широкая номенклатура изготавливаемая нашим предприятием ценится надежностью конструкций и высокими техническими характеристиками, мы изготавливаем как габаритные так и негабаритные металлоконструкции и прочие металлоизделия,  емкости, сосуды, аппараты.

Весь штат нашего предприятия – это высококвалифицированные специалисты !

Собственный цех горячего оцинкования , позволяет произвести антикоррозионное покрытие согласно нормативам по ГОСТ 9.307-89, а так же покрытие от коррозии и старения по ГОСТ 9.302-88, ГОСТ 9.308-85, ГОСТ 9.301-86, 9.306-85, СП 28.13330.2012.

Так же мы всегда готовы предоставить услуги по огнезащитной обработке и конструктивной огнезащите по ГОСТ Р 53295-2006

РазработкаКМД– от 1-го дня.

Перевезем, доставим все необходимые металлоконструкции, комплектующие и емкости до Вашего объекта в любой город России!

Для оформления заказа и определение ценовой политики в Россия на "Резервуар вертикальный РВС 75 м3" Вам достаточно набрать по телефону 8 (800) 777-65-70 или отправить заявку на наш электронный адрес zakaz@rezervuar-met.ru

Преимущества

  • Цены от производителя

  • Гарантия качества

  • Комплектация объектов под ключ

  • Производим монтаж/демонтаж

  • Оперативная доставка в любой регион

  • Быстрые сроки поставки,
    четкое соблюдение сроков

  • Персональный подход

  • Гарантийное обслуживание

  • Разработка КМД от 2-х
    рабочих дней

  • Составление КП от 15 минут

Подготовим коммерческое предложение
с учетом ваших индивидуальных технических требований

Скачать опросный лист

Технические характеристики

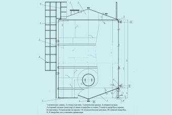
1-коническое днище, 2-стенка в рулоне, 3-коническая крыша, 4-опорное кольцо, 5-уторный элемент (швеллер),6-люки и патрубки в стенке, 7-люки и патрубки в крыше, 8-стремянка, 9-ограждение на крыше, 10-технологическая катушка; Ж-сливной патрубок, К, Е-патрубки для установки уровнемера

Чертеж

Чертеж Резервуар вертикальный РВС 75 м3

Доставка

Чтобы избавить Вас от необходимости поиска логистической компании, мы готовы взять на себя работу по осуществлению доставки оборудования на Ваш объект.

Преимущества осуществления доставки при помощи нашей компании:

  • Работа только с проверенными временем подрядчиками
  • Четкое соблюдение сроков
  • Разумные цены
  • При необходимости, груз можно застраховать
  • Стоимость услуги рассчитывается индивидуально, в зависимости от региона доставки и объема груза.

Свяжитесь с нашим менеджером по телефону или через форму сайта и мы подготовим для Вас расчет.

Скачать опросный лист