Резервуары и металлоконструкции
от завода-производителя

Доставка по всей России!

slide-s02

Резервуар вертикальный РВС 400 м3

Резервуар вертикальный РВС 400 м3

 

Стальной цилиндрический резервуар с вертикальной установкой, номинальным объемом 400 м³ широко применяется в промышленности. В нем, на относительно небольшой площади можно организовать хранение и технологическое использование в производстве вязких, жидких и сыпучих материалов. Завод Резервуаров и Негабаритных Металлоконструкций предоставляет возможность заказать и купить по экономически выгодной цене – резервуары вертикальные РВС 400 м³ по типовому, или разработанному по техническому заданию потребителя, проекту, производимые с учетом норм промышленной безопасности.

Назначение

Проектирование, изготовление, монтаж и испытания типовых изделий осуществляется по техническим условиям ГОСТ 31385-2016. Стандартом установлены требования, обеспечивающие безаварийную эксплуатацию и механическую надежность сооружений для нужд нефтедобычи, переработки и транспортировки нефтепродуктов, в качестве отстойников нефтесодержащих стоков и пластовых вод, для хранения противопожарного водного ресурса, минеральных удобрений, слабоагрессивных химических веществ и пищевых продуктов в жидком состоянии. 

Описание конструкции

РВС 400 м³ является сварным сооружением из листовой стали. Согласно ГОСТ – обозначение РВС применяется для наземных, резервуаров вертикальных стальных – со стационарной крышей, без понтона. Вертикальная стенка сформирована из 5 поясов, каждый из которых представляет собой цилиндрическую обечайку. Заготовки соединены плотнопрочнымм сварным швом – в единое рулонированное полотнище. Кроме стенки элементами конструкции являются:

  • днище – состоит из круглого, плоского сварного листа, с окрайкой по периметру;
  • крыша – каркасная, сварная из сегментов в форме конуса, с основанием, соответствующим диаметру вертикальной стенки;
  • кольцевая лестница с перильными ограждениями – от уровня земли, до верха цилиндра корпуса;
  • площадка обслуживания – по периметру сооружения – с круговым ограждением;
  • балки опорного каркаса и ребра жесткости.

Крыша и стенка, оборудуется врезными, герметично укрепленными: патрубками, опорными элементами под трубную обвязку, смотровым люком, кронштейнами для закрепления лестницы и площадки. Размещение устройств – согласно проекту.  

Сборку конструкции осуществляют на месте эксплуатации. Кромки заготовок вальцованы под сварку. Соединение заготовок осуществляется двусторонними стыковыми сварными швами, с полным проплавлением.

Размеры РВС 400 м³

Конструкция имеет размеры, обеспечивающие устойчивость и равномерность распределения нагрузок от собственного веса, рабочей среды и внешних воздействий.

 Таблица 1. Типовые размеры элементов конструкции

Наименование параметра

Значение

Внутренний диаметр резервуара, мм

8530

Толщина металла днища, стенки и крыши, мм

6, в том числе припуск на коррозию – 1 мм

Высота стенки цилиндра, с разбивкой по поясам, мм

7500 (5/1500)

Общая высота сооружения, мм

9060

Высота защитного ограждения, мм

Лестниц – 1000; площадок обслуживания – 1250

Высота крыши, мм

1500

Угол конуса крышки к плоскости основания

20°

Расчетная масса одно стенного резервуара, с учетом технологического и вспомогательного оборудования, т

19,2

Завод РиНМ принимает заказы на резервуары с защитной стенкой. Конструкция включает внутренний резервуар, под наполнение рабочей средой и наружную, стальную оболочку.

Эксплуатационные характеристики

Проект РВС 400 м³ рассчитан на механическую надежность и долговечность. Изделия оборудованы дыхательными и предохранительными клапанами, предотвращающими образование избыточного уровня давления и вакуума – в газовом пространстве РВС.

Таблица 2. Условия эксплуатации

Характеристика

Допустимые значения

Диапазон температур корпуса

Min – 65°C, max +160°C

Плотность продукта наполнения

В пределах 1600 кг/м³

Избыточное давление в газовом пространстве

Не более 5000 Па

Уровень сейсмичности в месте установки

9 баллов по шкале MSK-64.

Резервуары вертикальные, с номинальной вместимостью 400 м³ выполняются с системой противопожарной защиты, включающей сигнализаторы и установки тушения огня. В комплект сертифицированного изделия входят молниезащита и заземление корпуса. Защитные меры РВС 400 м³ от электростатической и магнитной индукции зависят от свойств продукта наполнения и материального исполнения резервуара.

Требования к стали

Элементы конструкции резервуара подразделяются на основные и вспомогательные, по степени ответственности. К стали для основных элементов предъявляются повышенные требования по степени раскисления. Марки стали подбирают в зависимости от климатического расположения резервуара: в умеренном климате Ст3, в холодном климате – 16ГС, 09Г2С. Заказчик может включить в техническое задание нержавеющие и другие марки стали, отвечающие требованиям по классу прочности и свариваемости.

Изделия имеют надежную антикоррозионную защиту. Наружная и внутренняя поверхности – оцинкованные. Дополнительно наносятся покрытия грунтовкой ГФ-021 или эмалью ПФ-115. По требование заказчика используем битумные и эпоксидные материалы.

Выгодное предложение от Завода РиНМ

Приглашаем оформить заказ и купить резервуары РВС 400 м³, имеющие веские преимущества относительно резервуарных сооружений других поставщиков. Мы предлагаем:

  • полный цикл – от разработки проекта, до пуска в эксплуатацию;
  • изделия из сертифицированных, качественных материалов, изготовленные по аттестованной сварочной технологии, аттестованным персоналом;
  • РВС 400 м³ - общепромышленного исполнения, и допущенные для применения на спецобъектах атомной энергетики и в оборонных отраслях;
  • экономически обоснованную, невысокую цену производителя – без переплаты.

 

Позвоните по номеру телефона Завода РиНМ, направьте техническое задание на электронный адрес. При необходимости получите компетентную консультацию нашего технического специалиста. Работам с заказчиками в России и в странах ближнего зарубежья.

Рассчитать стоимость или купить "Резервуар вертикальный РВС 400 м3" от Завода Резервуаров и Негабаритных Металлоконструкций вы сможете всегда в короткие сроки.

Широкая номенклатура изготавливаемая нашим предприятием ценится надежностью конструкций и высокими техническими характеристиками, мы изготавливаем как габаритные так и негабаритные металлоконструкции и прочие металлоизделия,  емкости, сосуды, аппараты.

Весь штат нашего предприятия – это высококвалифицированные специалисты !

Собственный цех горячего оцинкования , позволяет произвести антикоррозионное покрытие согласно нормативам по ГОСТ 9.307-89, а так же покрытие от коррозии и старения по ГОСТ 9.302-88, ГОСТ 9.308-85, ГОСТ 9.301-86, 9.306-85, СП 28.13330.2012.

Так же мы всегда готовы предоставить услуги по огнезащитной обработке и конструктивной огнезащите по ГОСТ Р 53295-2006

РазработкаКМД– от 1-го дня.

Перевезем, доставим все необходимые металлоконструкции, комплектующие и емкости до Вашего объекта в любой город России!

Для оформления заказа и определение ценовой политики в Россия на "Резервуар вертикальный РВС 400 м3" Вам достаточно набрать по телефону 8 (800) 777-65-70 или отправить заявку на наш электронный адрес zakaz@rezervuar-met.ru

Преимущества

  • Цены от производителя

  • Гарантия качества

  • Комплектация объектов под ключ

  • Производим монтаж/демонтаж

  • Оперативная доставка в любой регион

  • Быстрые сроки поставки,
    четкое соблюдение сроков

  • Персональный подход

  • Гарантийное обслуживание

  • Разработка КМД от 2-х
    рабочих дней

  • Составление КП от 15 минут

Подготовим коммерческое предложение
с учетом ваших индивидуальных технических требований

Скачать опросный лист

Технические характеристики

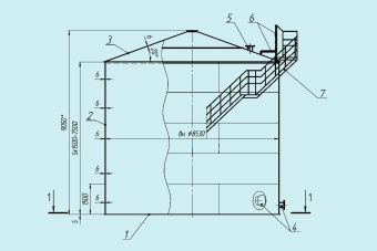
1- днище, 2 - стенка, 3 - крыша, 4, 5 - люки и патрубки, 6 - площадка кольцевая и ограждение, 7 - лестница кольцевая

Чертеж

Чертеж Резервуар вертикальный РВС 400 м3

Доставка

Чтобы избавить Вас от необходимости поиска логистической компании, мы готовы взять на себя работу по осуществлению доставки оборудования на Ваш объект.

Преимущества осуществления доставки при помощи нашей компании:

  • Работа только с проверенными временем подрядчиками
  • Четкое соблюдение сроков
  • Разумные цены
  • При необходимости, груз можно застраховать
  • Стоимость услуги рассчитывается индивидуально, в зависимости от региона доставки и объема груза.

Свяжитесь с нашим менеджером по телефону или через форму сайта и мы подготовим для Вас расчет.

Скачать опросный лист